Renovation-Ready in the Coveted 5 Sisters Neighborhood Welcome to 59 Catherine Street-an incredible chance to own in Burlington's beloved 5 Sisters Neighborhood. This 1930 corner-lot duplex offers timeless charm, a versatile layout, and the opportunity to build equity with updates. The spacious main unit features 4 bedrooms, open-concept living space, in-unit laundry, and private porches. Upstairs, a separate 1-bedroom apartment-with its own entry and balcony-offers income potential or space for guests, extended family, or a home office. While the home needs cosmetic and structural updates, the location is unbeatable. Nestled on a quiet street just minutes from downtown Burlington, the South End arts district, Lake Champlain, UVMMC, and top schools-this is a rare opportunity to invest in one of the city's most cherished neighborhoods. Whether you're an investor, owner-occupant, or buyer with a vision, this renovation-ready property offers flexibility, location, and long-term value. Sold as-is.

Listing Tools (detailViewNewGen)

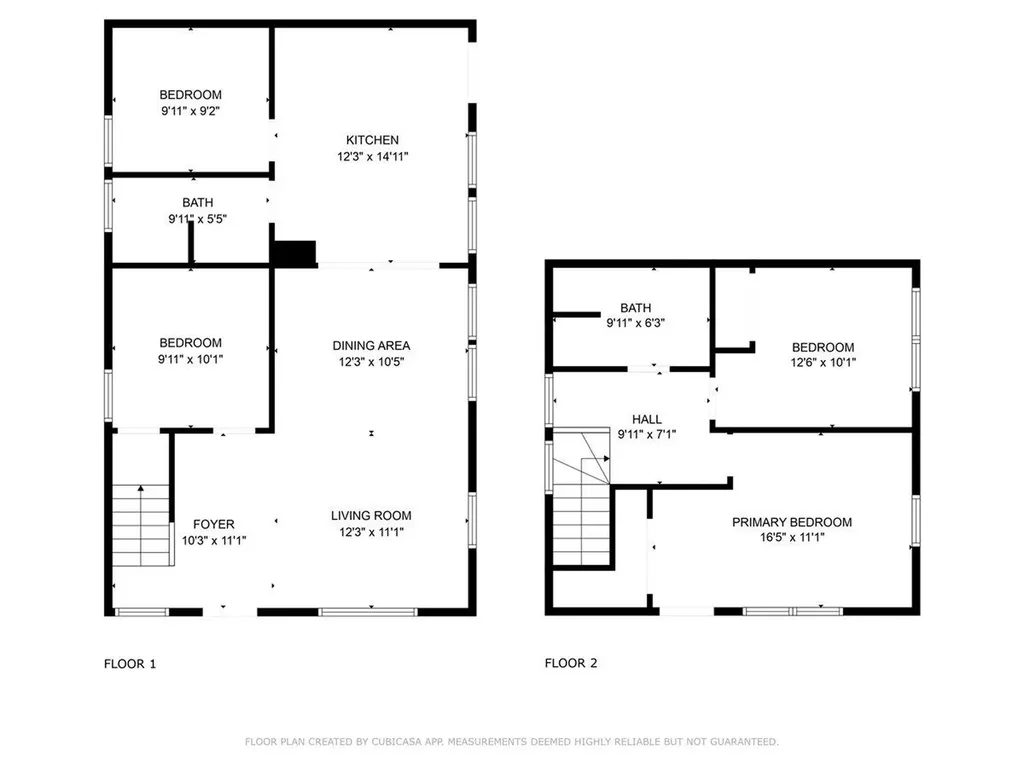
Property Details of 59 Catherine Street

Property Details

Map Location

Listed by The Signature Realty Group of Signature Properties of Vermont (jarahr@signaturepropertiesvt.com)

Listing Sold by Coldwell Banker Islands Realty
Broker Reciprocity 

Copyright 2025 PrimeMLS, Inc. All rights reserved. This information is deemed reliable, but not guaranteed. The data relating to real estate displayed on this display comes in part from the IDX Program of PrimeMLS. The information being provided is for consumers’ personal, non-commercial use and may not be used for any purpose other than to identify prospective properties consumers may be interested in purchasing. Data last updated November 15, 2025 12:52 PM EST

 

Hi there! How can we help you?

Contact us using the form below or give us a call.

Send Us A Message:

I agree to be contacted by the Your Journey Real Estate via call, email, and text. To opt out, you can reply 'stop' at any time or click the unsubscribe link in the emails. Message and data rates may apply. Privacy Policy & Terms and Conditions

Do not fill in this field:

This site is protected by reCAPTCHA and the Google Privacy Policy and Terms of Service apply.

Hi there! How can we help you?

Contact us using the form below or give us a call.

Send Us A Message:

Do not fill in this field:

This site is protected by reCAPTCHA and the Google Privacy Policy and Terms of Service apply.

Hi there! How can we help you?

Contact us using the form below or give us a call.

Send Us A Message:

Do not fill in this field:

This site is protected by reCAPTCHA and the Google Privacy Policy and Terms of Service apply.

Do not fill in this field:

This site is protected by reCAPTCHA and the Google Privacy Policy and Terms of Service apply.

Do not fill in this field:

This site is protected by reCAPTCHA and the Google Privacy Policy and Terms of Service apply.

Do not fill in this field:

This site is protected by reCAPTCHA and the Google Privacy Policy and Terms of Service apply.

$

Do not fill in this field:

This site is protected by reCAPTCHA and the Google Privacy Policy and Terms of Service apply.